1315-01
Maisonette / Kauf
47495 Rheinberg
Deutschland
199.000,00 EUR
ca. 555,40 EUR
8.988,00 EUR
3,57% inkl. der ges. 19% MwSt.
ca. 98,5 m²
4
1
3
2
1
Garage
Zentralheizung
Gas
Fliesen
mit Badewanne, mit Dusche
Süd
Holz
1983
G
30.12.2020
29.12.2030
nach Verbrauch
ca. 232,6 kWh/(m²a)
ca. 232,6 kWh/(m²a)
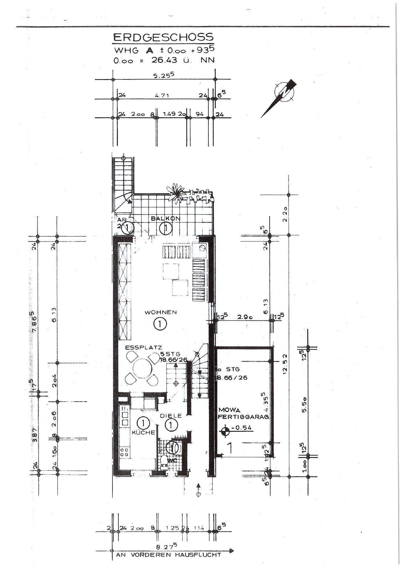
Diese sehr schön geschnittene Maisonette-Wohnung befindet sich in sehr ruhiger Lage in einem Zweifamilienhaus. Im Erdgeschoss befindet sich das Gäste WC, die Küche sowie der geräumige Wohnraum mit Zugang zur Terrasse und zum Garten.
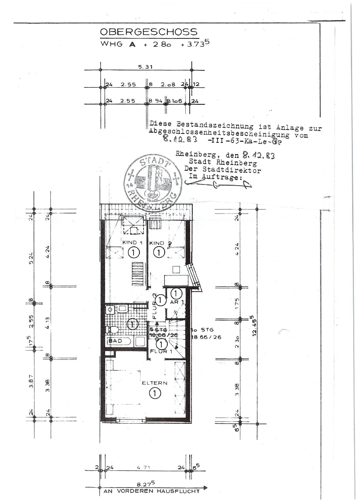
Das Obergeschoss ist aufgeteilt in drei Schlafräume, den Flur sowie einen praktischen Abstellraum. Das geräumige Badezimmer verfügt über eine Badewanne und Dusche. Wärme liefert eine 2024 erneuerte Gaszentralheizung, welche Bestandteil einer Heizungsbetriebsgemeinschaft mehrerer Häuser ist. Direkt neben dem Haus befindet sich die Garage.
Das Objekt ist aktuell vermietet. Die Jahreskaltmiete beträgt 8.988,-€.
Das Objekt befindet sich in Rheinberg am Annaberg, es liegt in einer Sackgasse ruhig gelegen am Ende eines kleinen Privatweges. Der Bahnhof sowie Geschäfte des täglichen Bedarfs sind fußläufig erreichbar. Die Autobahn A57 ist nur wenige Fahrminuten entfernt.
Rheinberg ist eine charmante Stadt am linken Niederrhein im Westen von Nordrhein-Westfalen, die durch ihre gelungene Verbindung von historischer Atmosphäre und moderner Lebensqualität besticht. Geprägt von einer langen Geschichte, die bis ins Mittelalter zurückreicht, verfügt Rheinberg über eine gut erhaltene Altstadt mit sehenswerten Bauwerken, darunter Teile der alten Stadtbefestigung und historische Kirchen. Besonders prägend ist der Marktplatz, der mit seinem traditionellen Charakter das kulturelle Herz der Stadt bildet.
Neben ihrem historischen Erbe bietet Rheinberg eine hohe Wohn- und Lebensqualität. Die Stadt ist von einer reizvollen niederrheinischen Landschaft umgeben, die zu Spaziergängen, Radtouren und vielfältigen Freizeitaktivitäten einlädt. Gleichzeitig profitiert Rheinberg von einer guten Verkehrsanbindung an die umliegenden Städte wie Duisburg, Moers und Kamp-Lintfort, wodurch sowohl Pendler als auch Familien die Lage besonders schätzen.
Die gewachsene Infrastruktur mit Einkaufsmöglichkeiten, Schulen, Kindergärten und medizinischer Versorgung macht Rheinberg zu einem attraktiven Wohnstandort. Darüber hinaus sorgen zahlreiche Vereine und kulturelle Veranstaltungen für ein lebendiges Gemeinschaftsleben. Insgesamt präsentiert sich Rheinberg als lebenswerte Stadt, die Ruhe, Natur und städtische Nähe harmonisch miteinander vereint.









